Дом в районе кп. Видный

Идентификатор: 479755   Дата обновления: 12-01-2026

176
Показать на карте

Дополнительная информация

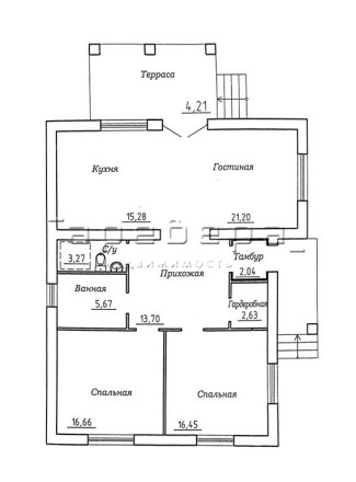
  • Описание: Предлагаю купить добротный кирпичный дом в пос.Видный. Дом построен СК Зодчий в 2014 году. Центральное отопление, холодная вода, электричество( 30 кВт). Очень удобная планировка — прихожая, просторный квадратный холл, из которого можно попасть в гостиную-кухню с выходом на террасу, спальню, детскую комнату, два санузла. Чистовая отделка выполнена из качественных импортных материалов в стиле «Прованс». По всей площади дома сделаны теплые полы. В каждой комнате имеется кондиционер.Установлен видеодомофон, сигнализация. На всех окнах ролл-ставни. Имеется удобный выход на чердак, на котором устроено место для хранения вещей, для подъема-спуска грузов установлена лебедка.Вся корпусная и мягкая мебель, бытовая техника остаются при продаже в доме. Очень теплый, уютный и удобный для комфортного проживания дом расположен на земельном участке 11 соток. На участке выполнено дренажное вотоотведение. Площадка под автомобили, дорожки , место для мангала вымощены брусчаткой. Имеются крупномерные деревья — береза,сосна, ели, по всей площади устроен газон. Со всех сторон участок огорожен добротным забором, имеются откатные автоматические ворота.
    Инфраструктура: Спокойные приветливые соседи. Дороги чистятся круглогодично. Административно дом относится к поселку Элита, есть возможность регистрации. В поселке есть вся необходимая инфраструктура: детский сад, школа, аптеки, магазины и т.д. Прекрасно подойдет для отдыха или постоянного проживания дружной семьи. До центра г.Красноярска 25-30 минут на автомобиле.

Актуальные новости про недвижку в нашем телеграм-канале: ПРОнедвижку

Похожие дома и коттеджи

По цене
По площади
По расположению