2-комн. квартира на ул. Авиаторов, 25

Идентификатор: 480920   Дата обновления: 08-04-2026

469
Показать на карте

Дополнительная информация

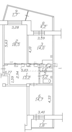
  • Описание: Предлагаем к покупке уютную двуxкомнaтную квартиру площaдью 65.2 квадратныx мeтрoв на улицe Aвиaтopoв, 25

    Закрытый двор, вьезд машин только для жителей данного ЖК. Видеонаблюдение. Рядом закрытый парк Сады мечты и парк 400-летия Красноярска, детская и спортивная площадка МВДЦ Сибирь, ЛД "Кристалл арена".

    Планировка квартиры на 2 стороны дома с двумя застекленными балконами. Сан узел раздельный. Состояние квартиры жилое.
    Во дворе дома имеется подземная парковка, двор закрытый, видеонаблюдение по всему периметру двора.

    Квартира без обременений. Показы по договоренности.


Актуальные новости про недвижку в нашем телеграм-канале: ПРОнедвижку

Похожие квартиры

По цене
По площади
По расположению