Нежилое помещение на ул. Маерчака

Идентификатор: 481676   Дата обновления: 23-12-2025

230
Показать на карте

Дополнительная информация

  • Описание:

    Предлагаем снять в аренду помещение свободного назначения по адресу: г. Красноясрк, ул.Маерчака, 8, стр. 2.


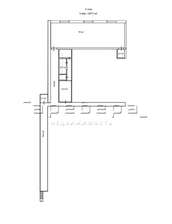
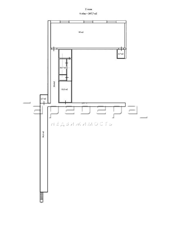
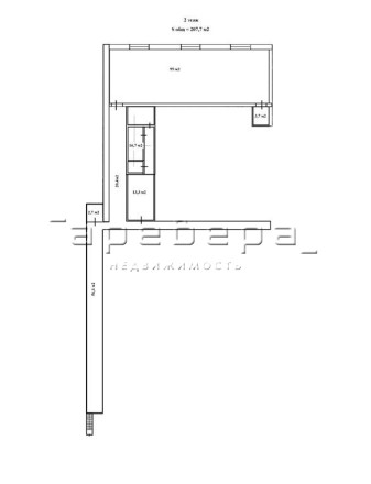
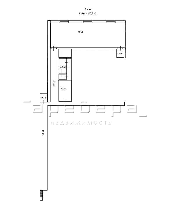
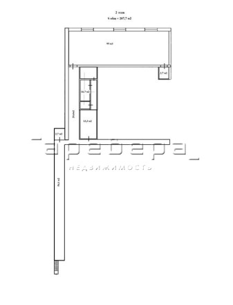
    Общая площадь — 762,5 м2, из них:

    • первый этаж (высота 8,4 м) — 554,8 м2,

    • второй (антресоль) — 207,7 м2.

    На данный момент помещения подготовлены под спортивный и гимнастический залы. Возможна эксплуатация по любому другому профилю деятельности вашей организации.




    Инфраструктура: Помещение расположено в центральной части Железнодорожного района с удобным подъездом из любой части города. Рядом расположены учебные заведения, кафе, банки, офисные центры, остановки общественного транспорта.
    Условия: Арендатор услуги агентства недвижимости не оплачивает.

Актуальные новости про недвижку в нашем телеграм-канале: ПРОнедвижку

Похожие объекты коммерческой недвижимости

По цене
По площади
По расположению